Verkocht

Kijkduinstraat 85 2 1055 XT Amsterdam

Omschrijving

ENGLISH TEXT BELOW

In een mooie “groene” straat ligt op de tweede verdieping dit lichte 3-kamerappartement met aan de achterzijde een zonnig balkon over de volledige breedte van de woning. Op de vierde verdieping is nog een ruime kamer. Ruim 60 jaar heeft de laatste bewoonster genoten van deze woning. Diverse authentieke details zoals paneeldeuren en de natuurstenen schouw zijn nog aanwezig. De hele woning is voorzien van houten ramen en deuren met dubbele beglazing. Een interne modernisering zal noodzakelijk zijn. De erfpacht is eeuwigdurend afgekocht.

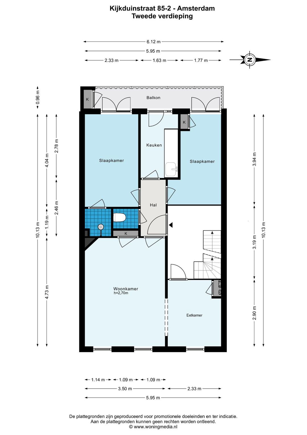
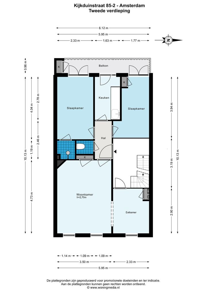
INDELING
Keurige gemeenschappelijke entree.
Woningentree op de tweede verdieping; hal; woonkamer met authentieke schouw en vaste kast; zijkamer, ideaal als werkkamer of extra slaapkamer; twee slaapkamers achterzijde, allebei met openslaande deuren naar balkon en één met vaste kast; dichte keuken met het originele keukenblok en deur naar balkon; toilet; douche; balkon met balkonkast en gelegen op het westen
Ruime kamer met grote ramen op de vierde verdieping

LIGGING
De woning ligt in een rustige straat in Bos & Lommer in Amsterdam West. Deze buurt heeft zich ontwikkeld tot een veelzijdige wijk met een ruim aanbod aan winkels, hoofdzakelijk gelegen aan de Bos & Lommerweg en – plein. Daarnaast is er een diversiteit aan restaurants en lunchrooms. De centrale ligging is een ander sterk punt, 10 minuten fietsen naar het centrum, de tramhalte praktisch om de hoek, 5 minuten fietsen naar station Sloterdijk en een uitstekende aansluiting op de Ringweg. Het levendige Westerpark met de bekende culturele hotspot De Westergasfabriek en vele festivals is op loopafstand.

VVE
De VvE bestaat uit 135 appartementsrechten gelegen aan de Kijkduinstraat 43-105 en Gibraltarstraat 31-41. De gezonde vereniging wordt professioneel beheerd. Er is een meerjarenonderhoudsplan en voldoende reserve. De servicekosten zijn € 93,06 per maand.

DIVERSEN
– gebruiksoppervlakte woning 52,5 m²
– gebruiksoppervlakte berging 7,3 m²
– balkon 5,4 m²
– woning is volledig voorzien van dubbele beglazing
– in de koopakte wordt een ouderdomsclausule en asbestclausule opgenomen en een clausule
dat de eigenaar de woning niet zelf heeft bewoond

ENGLISH

This bright 3-room apartment on the second floor is located in a beautiful “green” street with a sunny balcony facing west at the rear over the full width of the house. There is another spacious room on the fourth floor. The last resident has enjoyed this home for over 60 years. Various authentic details such as panel doors and the natural stone fireplace are still present. The whole house has wooden windows and doors with double glazing. An internal modernization will be necessary. The lease has been bought off perpetually.

LAYOUT
Well maintainded common entrance.
Housing entrance on the second floor; hall; living room with authentic fireplace and closet; side room, ideal as a study or extra bedroom two bedrooms at the rear, both with patio doors to the balcony and one with a closet; closed kitchen with kitchen unit and door to balcony; toilet; shower; balcony with balcony cupboard and located on the west
Spacious room with large windows on the fourth floor

LOCATION
The house is located in a quiet street in Bos & Lommer in Amsterdam West. This neighborhood has developed into a versatile neighborhood with a wide range of shops, mainly located on the Bos & Lommerweg and square. In addition, there is a diversity of restaurants and lunchrooms. The central location is another strong point, 10 minutes by bike to the center, the tram stop practically around the corner, 5 minutes by bike to Sloterdijk station and an excellent connection to the Ringweg. The lively Westerpark with the famous cultural hotspot De Westergasfabriek and many festivals is within walking distance.

VvE
The VvE consists of 135 apartment rights located at Kijkduinstraat 43-105 and Gibraltarstraat 31-41. The healthy association is professionally managed. There is a multi-year maintenance plan and sufficient reserves. The service costs are € 93.06 per month.

MISCELLANEOUS
– usable area of ??the house 52.5 m²
– usable storage area 7.3 m²
– balcony 5.4 m²
– house is fully equipped with double glazing
– an old age clause and an asbestos clause are included in the purchase deed and a clause
that the owner has not lived in the house himself

Lees de volledige omschrijving

Contact

Kenmerken

Algemeen

Aangeboden sinds
6+ maanden
Status
Verkocht
Aanvaarding
In overleg
Soort woonhuis
Appartement, bovenwoning
Soort bouw
Bestaande bouw
Bouwjaar
1934
Ligging
Aan rustige weg

Oppervlakten en inhoud

Wonen
53 m²
Overige inpandige ruimte
1 m²
Gebouwgebonden Buitenruimte
5 m²
Externe bergruimte
7 m²
Inhoud
150 m³

Indeling

Aantal kamers
4 kamers (3 slaapkamers)
Aantal badkamers
1 badkamer
Badkamervoorzieningen
Douche
Aantal woonlagen
1

Energie

Energielabel
G
Verwarming
Gaskachels

Kadastrale gegevens

Perceelnaam
Sloten C 10526
Eigendomssituatie
Erfpacht

Parkeergelegenheid

Soort parkeergelegenheid
Betaald parkeren, openbaar parkeren, parkeervergunningen
Bekijk alle kenmerken

Overige media