Verkocht

Eerste Coehoornstraat 12 1018 SN Amsterdam

Omschrijving

ENGLISH TEXT BELOW
Dit lichte studio-appartement is gelegen In stadsdeel Centrum op de hoek van de gezellige winkelstraat Czaar Peterstraat, De woning is rustig gelegen aan de achterzijde op de bovenste etage van een goed onderhouden complex uit 1986. Vanuit de woning heeft u vrij uitzicht op de binnentuin en het water van de Oostenburgergracht. De woning is volledig voorzien van dubbele beglazing en heeft energielabel

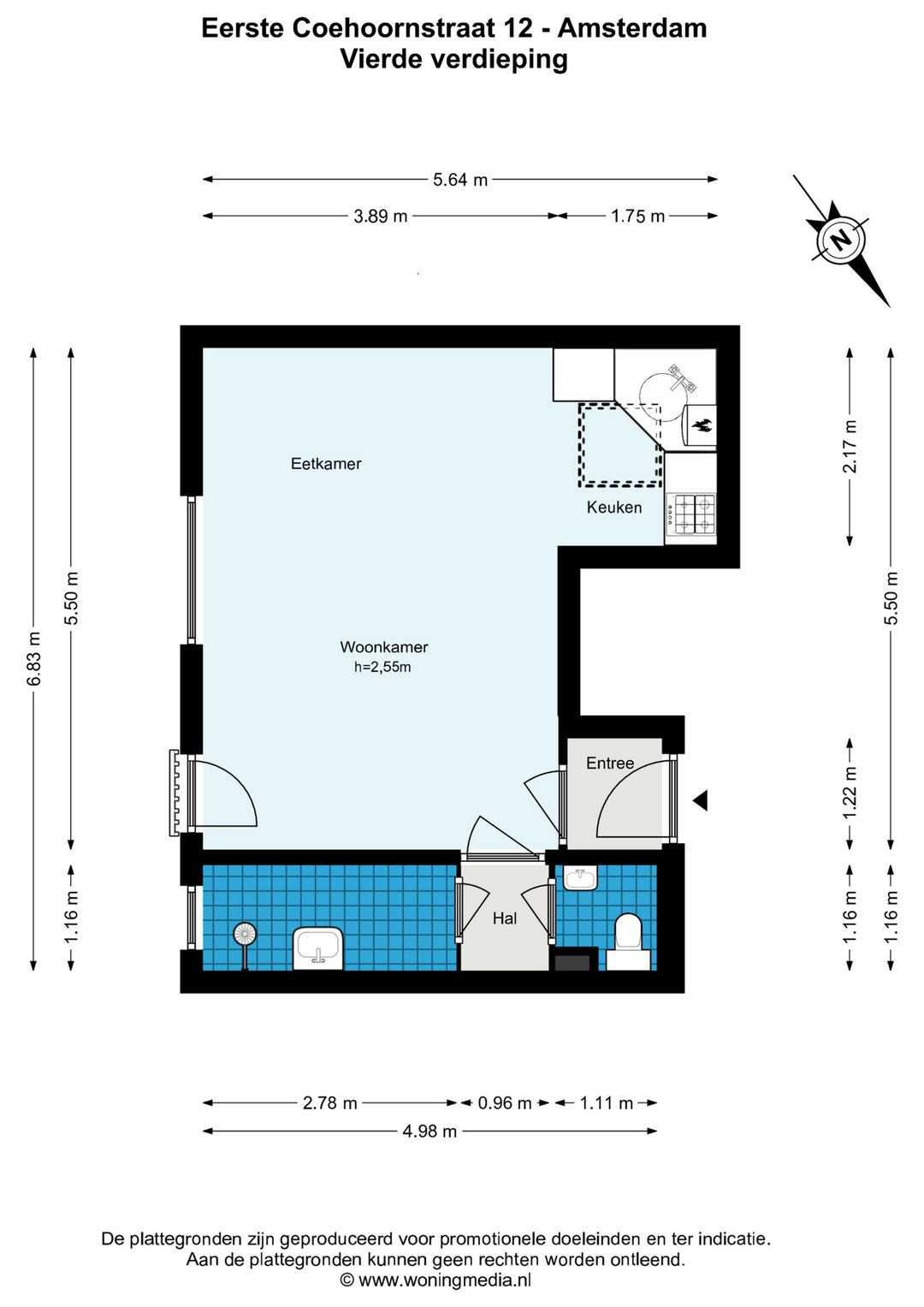
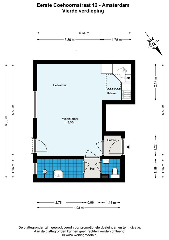
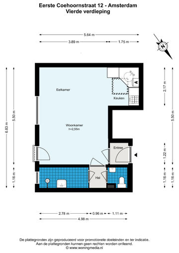
INDELING
De entree is op de vierde en tevens bovenste verdieping. Via de hal komt u in de lichte woon-/slaapkamer. Door de grote ramen komt veel licht en in de zomer is het franse balkon een heerlijke plek om te genieten van de zon. De open keuken heeft een modern wit Bruynzeel keukenblok in hoekopstelling met een ingebouwde oven, kookplaat en afzuigkap. Via een tussenhal heeft u toegang tot de bafkamer en het separate toilet. De badkamer heeft een granito vloer, witte wandtegels en is voorzien van een douche, wastafel en wasmachineaansluiting.

In de onderbouw is nog een berging voorzien van elektra. Ideaal voor de fiets en overige spullen.

LIGGING
De woning ligt aan het begin van de Czaar Peterstraat en Czaar Peterkwartier. In 2015 is deze straat uitgeroepen tot mooiste winkelstraat van Nederland. “Een sfeervol winkelgebied met authentieke ondernemingen en eerlijke en lokale producten” zoals op de site staat omschreven. Van kleding tot design meubelen, supermarkt en gezellige horeca zoals Springer, Brouwerij ’t IJ. Even verderop is de bekende Dappermarkt en de Javastraat waar u ook heerlijk kunt struinen. Het is een paar minuten fietsen naar de binnenstad, UVA (Universiteit van Amsterdam), Oosterpark, OLVG (Onze Lieve Vrouwe Gasthuis) en Artis. Voor de deur stopt de tram die Amsterdam Oost via het centrum met Amsterdam West verbindt. Via de Piet Hein Tunnel is er een goede verbinding met de Ringweg.

VvE
De VvE bestaat 62 woningen. De administratie wordt professioneel gevoerd. De servicekosten zijn in 2023 € 86,44 per maand. Er is een meerjarenonderhoudsplan.

DIVERSEN
– gebruiksoppervlakte woning 33,3 m²
– berging oppervlakte 3 m²
– bouwjaar 1986
– dubbele beglazing
– combi cv-ketel
– erfpacht afgekocht tot 15 juni 2037
– laminaatvloer
– energielabel
– oplevering in overleg

ENGLISH

This bright studio apartment is located in the Centrum district on the corner of the pleasant shopping street Czaar Peterstraat. The apartment is quietly located at the rear on the top floor of a well-maintained complex from 1986. From the apartment you have an unobstructed view of the courtyard and the water of the Oostenburgergracht. The house is fully equipped with double glazing and has an energy label D

LAYOUT
The entrance is on the fourth and top floor. Through the hall you enter the bright living room/bedroom. The large windows let in a lot of light and in the summer the French balcony is a wonderful place to enjoy the sun. The open kitchen has a modern white Bruynzeel corner kitchen unit with a built-in oven, hob and extractor hood. Through an intermediate hall you have access to the bathroom and the separate toilet. The bathroom has a granito floor, white wall tiles and is equipped with a shower, sink and washing machine connection.

In the basement is a storage room with electricity. Ideal for the bicycle and other items.

LOCATION
The apartment is located at the beginning of the Czaar Peterstraat and Czaar Peterkwartier. In 2015, this street was declared the most beautiful shopping street in the Netherlands. “An attractive shopping area with authentic businesses and honest and local products” as described on the site. From clothing to design furniture, supermarket and cozy restaurants such as Springer and Brouwerij ’t IJ. A little further on is the famous Dappermarkt and Javastraat where you can also enjoy a nice stroll. It is a few minutes by bike to the city center, UVA (University of Amsterdam), Oosterpark, OLVG (hospital) and Artis. The tram that connects Amsterdam East to Amsterdam West via the center stops in front of the door. There is a good connection to the ring road via the Piet Hein Tunnel.

OWNERS ASSOCIATION
The VvE consists of 62 apartments. The administration is conducted professionally. The service costs will be €86.44 per month in 2023. There is a multi-year maintenance plan.

MISCELLANEOUS
– usable area 33.3 m²
– storage area 3 m²
– year of construction 1986
– double glass
– combi boiler
– leasehold bought off until June 15, 2037
– laminate flooring
– energy label D
– Delivery in consultation

Lees de volledige omschrijving

Contact

Kenmerken

Algemeen

Aangeboden sinds
6+ maanden
Status
Verkocht
Aanvaarding
In overleg
Soort woonhuis
Appartement, bovenwoning
Soort bouw
Bestaande bouw
Bouwjaar
1986
Ligging
In centrum, vrij uitzicht

Oppervlakten en inhoud

Wonen
33 m²
Externe bergruimte
3 m²
Inhoud
108 m³

Indeling

Aantal kamers
1 kamer
Aantal badkamers
1 badkamer
Badkamervoorzieningen
Douche, wasmachineaansluiting, wastafel
Aantal woonlagen
1
Voorzieningen
Frans balkon, mechanische ventilatie, natuurlijke ventilatie

Energie

Energielabel
D
Isolatie
Dubbel glas, volledig geisoleerd
Verwarming
Cv ketel
Warm water
Cv ketel

Kadastrale gegevens

Perceelnaam
Amsterdam N 4464
Eigendomssituatie
Erfpacht
Perceel
ASD10-N-4464
Perceelnaam
Amsterdfam N 4464
Eigendomssituatie
Erfpacht

Parkeergelegenheid

Soort parkeergelegenheid
Betaald parkeren, openbaar parkeren, parkeervergunningen
Bekijk alle kenmerken

Overige media