Verkocht

De Rijpgracht 61 hs 1056 XS Amsterdam

Omschrijving

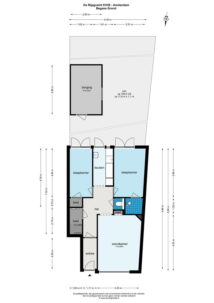
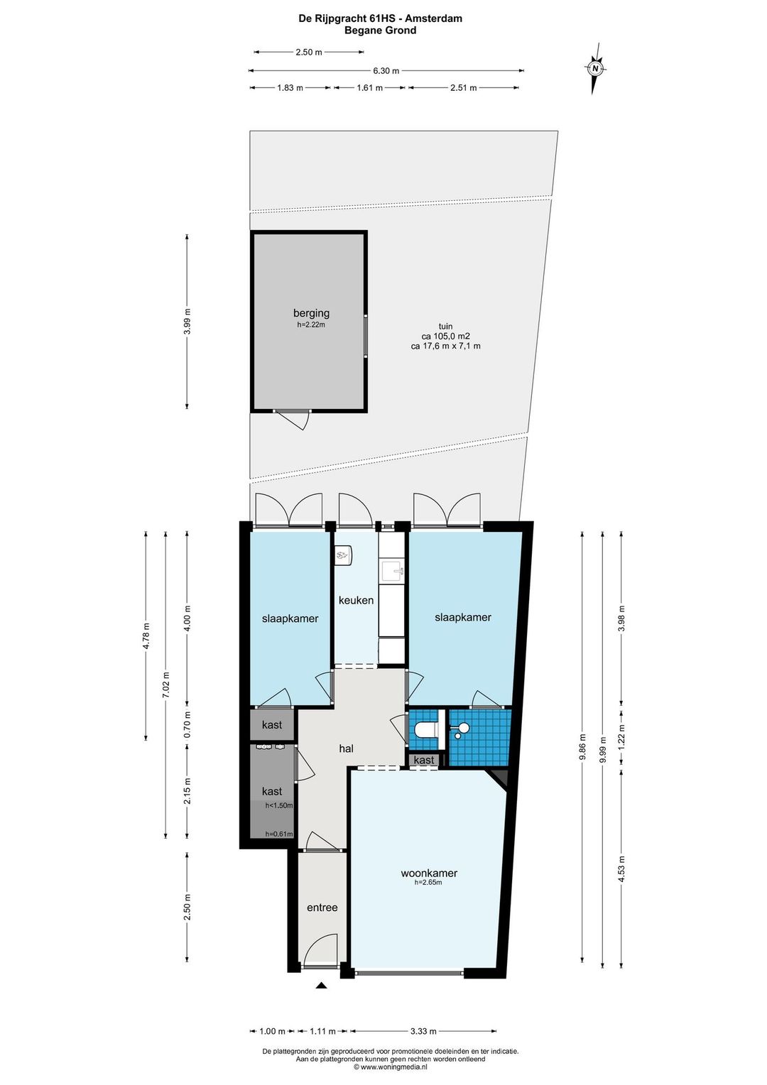
Benedenwoning van 55 m² met een zonnige tuin op het zuiden van ca 105 m² en zeer veel potentie. De woning met vrij uitzicht ligt aan het autovrije en doodlopende deel van De Rijpgracht, een rustige ligging met veel privacy. In de tuin staat een ruime stenen berging van 10 m². Optioneel kan de woning maximaal 4 meter vergunningsvrij worden uitgebouwd waardoor ca 25 m² extra woonoppervlakte. Hiervoor is toestemming nodig vanuit de VvE maar deze is inmiddels bij andere benedenwoningen al verstrekt. Een unieke kans om op deze fantastische plek uw droomwoning te realiseren. De erfpacht is eeuwigdurend afgekocht.

INDELING
Eigen entree; gang/hal met ruime trapkast; woonkamer met inbouwkast en vrij uitzicht; twee in grootte variërende slaapkamers, 1 met inbouwkast, aan de achterzijde met openslaande deuren naar de tuin; dichte keuken met eenvoudig keukenblok en toegang tot de tuin; doucheruimte; toilet; tuin, 17,5 m diep, gelegen op het zonnige zuiden met stenen berging

LIGGING
De Rijpgracht ligt aan de rand van Bos & Lommer. Een gezellige straat met de mogelijkheid een bootje af te meren of te genieten op het gezellige terras van Spaghetteria. Winkels liggen op loopafstand in de Jan van Galenstraat. In deze straat kunt u ook ontbijten en lunchen bij Bagels & Beans of een kopje koffie drinken bij Selma’s of aan de overkant bij Bendito. Willen de kinderen ergens anders spelen als in de tuin dan neemt u ze mee naar De Ruige Speelplek. Deze bijzondere speeltuin ligt praktisch om de hoek. De halte van tramlijn 19 naar het centrum en buslijn 247 naar Schiphol liggen ook op loopafstand. Het centrum is nog geen 10 minuten fietsen. Met de auto bent u zo op de Ringweg.

VvE
Deze grote vereniging met 61 woningen wordt professioneel beheerd. Er is een meerjarenonderhoudsplan. De servicekosten zijn € 106,03 per maand.

DIVERSEN
– nagenoeg geheel voorzien van dubbele beglazing
– combi cv-ketel bouwjaar2015
– erfpachtcanon EEUWIGDUREND afgekocht
– in de koopakte wordt een ouderdoms-, niet-bewoners- (eigenaar heeft de woning nooit zelf
bewoond) en asbestclausule opgenomen
– levering in overleg (kan snel)

Lees de volledige omschrijving

Contact

Kenmerken

Algemeen

Aangeboden sinds
6+ maanden
Status
Verkocht
Aanvaarding
In overleg
Soort woonhuis
Appartement, benedenwoning
Soort bouw
Bestaande bouw
Bouwjaar
1935
Ligging
Beschutte ligging, in woonwijk, vrij uitzicht

Oppervlakten en inhoud

Wonen
55 m²
Externe bergruimte
10 m²
Inhoud
203 m³

Indeling

Aantal kamers
3 kamers (2 slaapkamers)
Aantal badkamers
1 badkamer
Badkamervoorzieningen
Douche
Aantal woonlagen
1

Energie

Isolatie
Grotendeels dubbelglas

Kadastrale gegevens

Perceelnaam
Sloten C 10652
Eigendomssituatie
Erfpacht

Buitenruimte

Tuin
Achtertuin
Achtertuin
105 m²
Ligging tuin
Zuid

Parkeergelegenheid

Soort parkeergelegenheid
Betaald parkeren, openbaar parkeren, parkeervergunningen
Bekijk alle kenmerken

Overige media